Skelbimo aprašymas
Įsikelkite iš karto – pilnai įrengtas namas su baldais ir buitine technika!
Parduodamas 2022 m. statybos, įrengtas, mūrinis, 1 aukšto, 4 kambarių namas Trušeliuose. Name lieka integruoti baldai ir įmontuota buitinė technika. Šviesi svetainė su virtuvės erdve ir vitrininiais langais turi tiesioginį išėjimą į terasą, o šviesios interjero spalvos kuria erdvės pojūtį. Komfortą ir ekonomišką išlaikymą užtikrina oras–vanduo šilumos siurblys, grindinis šildymas visame name bei rekuperacijos sistema.
Kiemas sutvarkytas – trinkelės, prižiūrėta žalia veja, teritorija aptverta, patogus įvažiavimas. Naujos statybos vieno aukšto namų kvartalas ir greitas susisiekimas su Klaipėda. Dokumentai tvarkingi – galimas greitas sandoris.
BENDRA INFORMACIJA
• Adresas: Klaipėdos r. sav., Sendvario sen., Trušelių k., Sodėnų g. 53A
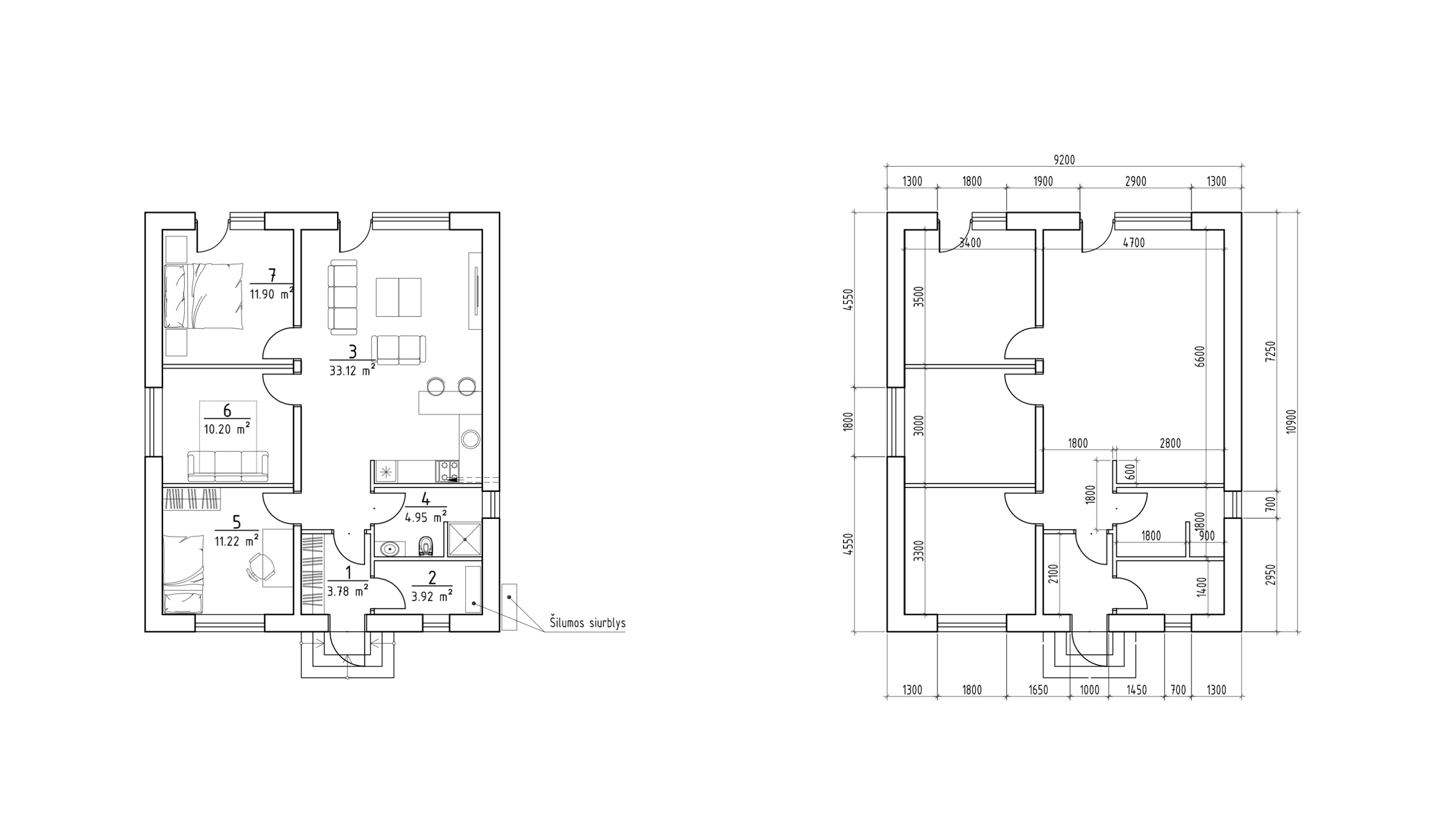
• Namo plotas: 79 kv. m
• Kambarių skaičius: 4 (3 miegamieji + svetainė su virtuve)
• Aukštų skaičius: 1
• Statybos metai: 2022 m.
• Baigtumas: 100 %
• Konstrukcija: mūrinis
• Išorinės sienos: 200 mm dujų silikato blokeliai + 200 mm EPS 70F apšiltinimas
• Stogas: betoninės čerpės, apšiltintas ~20 cm poliuretano putomis
• Langai: PVC profiliai (5 kamerų), 3 stiklų (2 kamerų) paketas, mikroventiliacija
• Fasado apdaila: dekoratyvinis tinkas
• Pamatai: poliniai gręžtiniai su monolitiniu rostverku, apšiltinti 100 mm putplasčiu
• Energinio naudingumo klasė: B
• Įrengimas: pilnai įrengtas
• Sklypas: priskirta 4,75 a kiemo dalis (nustatytą naudojimosi tvarka)
VIETA / KVARTALAS
• Iki Klaipėdos – apie 10 min. automobiliu (priklausomai nuo eismo)
• Rami aplinka – atokiau nuo miesto šurmulio, tačiau greitai pasiekiami svarbiausi kasdieniai objektai Klaipėdoje
• Šalia sklypo – asfaltuotas privažiavimas, todėl namus patogiai pasieksite bet kuriuo metų laiku
• Tvarkingas vieno aukšto namų kvartalas – aiškios sklypų ribos, privatumo pojūtis
• Trušeliuose aktyviai plečiasi nauji gyvenamųjų namų kvartalai – viena sparčiausiai augančių vietovių Klaipėdos priemiestyje
SKLYPAS / KIEMAS
• Žemės sklypas – bendrosios dalinės nuosavybės; nustatyta naudojimosi tvarka – namui priskirta aptverta, lengvai prižiūrima 4,75 a kiemo dalis
• Teritorija aptverta segmentine tvora, paliktas įvažiavimas dviem automobiliams
• Kiemo danga iki medinės terasos – apie 50 kv. m, išklota trinkelėmis
• Šiltuoju sezonu – prižiūrėta žalia veja
• Įrengta medinė terasa per visą namo plotą, orientuota į rytus – patogi erdvė poilsiui ir laikui su šeima (išėjimas tiesiai iš svetainės ir miegamojo)
• Įrengtas terasos apšvietimas, įrengtos lauko rozetės
• Sklype pastatytas sandėliukas dviračiams, padangoms ir kitiems daiktams laikyti
• Lietaus vanduo nuvedamas latakais ir lietvamzdžiais, vanduo pašalinamas per drenažo sistemą
VIDAUS ĮRENGIMAS
• Modernus ir funkcionalus išplanavimas: 3 miegamieji + svetainė su virtuvės erdve, daug natūralios šviesos, suteikiančios erdvės pojūtį
• Ekonomiškas šildymas – oras–vanduo šilumos siurblys, grindinis šildymas visame name (šalčiausią žiemos mėnesį bendros elektros sąnaudos su šildymu buvo apie 160 Eur)
• Moderni, jauki svetainė su virtuvės erdve, integruotais baldais ir reikalingiausia buitine technika: indaplovė, kaitlentė, orkaitė, šaldytuvas, skalbimo mašina, džiovyklė
• Įtempiamos lubos, įleidžiami LED šviestuvai visame name
• Talpi sieninė spinta prieškambaryje su veidrodinėmis stumdomomis durimis
• Miegamajame – erdvi spinta su stumdomomis veidrodinėmis durimis, patogi dvigulė lova
• Pilnai įrengtas vonios kambarys su langu ir vonia (natūrali šviesa ir vėdinimas)
• Atskira techninė patalpa / skalbykla su langu (patogu, šviesu, papildoma daiktų laikymo vieta)
• Langai orientuoti į visas namo puses
VIDAUS IŠPLANAVIMAS
• Tambūras / prieškambaris – 3,78 kv. m
• Svetainė su virtuve – 33,12 kv. m
• Miegamieji – 11,90 kv. m / 11,22 kv. m / 10,20 kv. m
• Vonios kambarys (san. mazgas) – 4,95 kv. m
• Techninė patalpa / skalbykla (pagalbinė patalpa) – 3,92 kv. m
KOMUNIKACIJOS
• Šildymas – aeroterminis (šilumos siurblys oras–vanduo) + grindinis šildymas visame name
• Rekuperacijos sistema – išvedžiota po visus kambarius
• Vandentiekis – kvartalo tinklai (bendras gręžinys)
• Nuotekos – vietiniai valymo įrenginiai (kvartalo sprendimas)
• Elektra – 9 kW įvadas, sumontuotas vidinis elektros skydelis
• Šviesolaidinis internetas
APŽIŪRA JUMS PATOGIU METU
• Pirkėjui tarpininkavimo mokestis netaikomas
• Skambinkite – suteiksiu visą reikiamą informaciją ir suderinsiu apžiūrą Jums patogiu metu
• Pakonsultuosiu visais su pirkimu ar pardavimu susijusiais klausimais
Planuojate parduoti? Kreipkitės – nemokamai pakonsultuosiu ir padėsiu nustatyti realią Jūsų objekto rinkos kainą.
Nekilnojamojo turto brokeris
Henrikas Mauragis
+370 644 65330
Detali informacija
- Skelbimo pobūdisPardavimui
- SavivaldybėKlaipėdos r.
- AdresasSodėnų gatvė 53A, Trušeliai, Klaipėdos r. sav., Lietuva
- Kaina219900€
- Plotas79 m2
- Pastato tipasMūrinis
- Metai2022
- Būsto aukštas1/1
- Kambarių sk.4
- ŠildymasAeroterminis
- BūklėPilnai įrengta
- Renovacijos statusasNerenovuota
